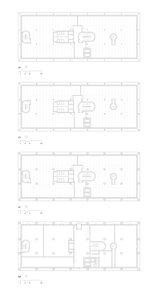
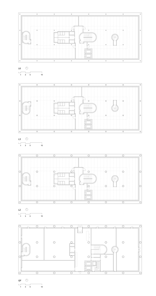
Office Building Lyon Confluence Îlot A3, Christian Kerez, 20182024/12/06 thumbnail-size : 600x480; Tags : #스위스 #건축 #케레즈; summary; 이전다음 012 이전다음 012 > > 공유하기 게시글 관리 HW