관련 법규
https://www.law.go.kr/법령/건축법/(20230611,18935,20220610)/제2조
https://www.law.go.kr/법령/건축법시행령/(20230516,33466,20230515)/제119조
「건축법」에서 높이와 관련된 규정의 기준은 실·내외를 막론하고 평균높이를 의미합니다. 예를 들어 건축물이 평평한 대지에 건축되었다면 별 문제가 없겠으나, 고저차(高低差)가 있는 경사지에 건축된 경우라면 측정 위치에 따라 높이가 달라질 수 있을 것입니다. 또한 실내 천장(반자)높이 경우도 마찬가지로 지붕이 경사져 있거나 혹은 다양한 높이로 천장을 디자인 했다면 높이 측정에 어려움이 생길 수 있을 것입니다.
따라서 법은 어떠한 상황에서도 흔들림 없는 판단기준이 있어야 하므로 이렇게 측정 위치에 따라 다른 높이 값이 생길 경우 「건축법」에서는 이들의 평균높이로 측정값을 인정하는데, 평균높이를 구하는 방식을 가중평균이라고 합니다. 가중평균을 구하는 방식은 두 가지로 대지에 고저차가 있는 경우(※건축물의 높이 참조)와 거실에 고저차가 있는 경우입니다.


고저차가 있는 거실의 반자(천장)높이 산정 ⓒ이재인
가중평균에 의해 평균높이를 적용해야 하는 것은 건축물 외부적인 것과 내부적인 것, 크게 두 가지로 함축해서 규정을 이해할 수 있습니다.
건축물 외부적인 것은 대지가 경사지인 경우로 건축물의 높이와 처마높이 및 지하층 인정 여부 문제와 관여되고, 건축물 내부적인 것은 천장에 경사가 있는 것 등으로 해서 ‘거실’의 인정 여부 문제와 ‘다락’의 인정 여부 문제와 결부됩니다.

만약 ‘거실’로 인정받지 못하면 ‘건축허가’를 받지 못할 것이고, ‘다락’으로 인정을 받으면 바닥면적에서 제외 되는 인센티브를 적용 받을 수 있다(※바닥면적산정의 예외 중 승강기탑, 계단탑, 장식탑, 다락 등 참조).
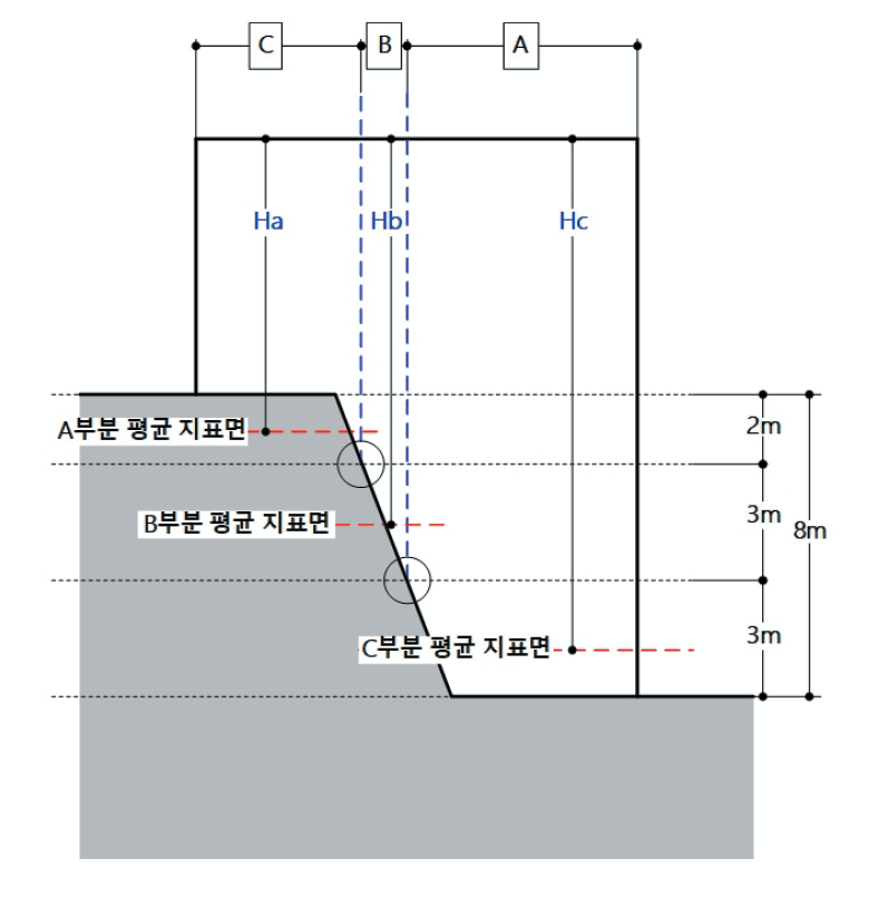
01. 고저차가 있는 대지의 건축물 높이는 3m마다 지표면 설정
건축물의 높이는 지표면으로부터 건축물의 상단까지의 수직거리이며, 경사지이거나 고저차가 있는 대지에 건축물을 건축할 경우 ‘가중평균’하여 ‘평균지표면’에서부터 건축물의 높이를 구하게 됩니다(※건축물의 높이 참조). 이때, 고저차가 3m이상 나는 대지의 경우 ‘평균지표면’은 3m마다 각각 구해야 합니다(「건축법 시행령」 제119조 제2항).
즉, 3m이상 고저차가 나는 대지에 건축물을 건축했다면, 단일 건축물이라도 「건축법」 적용(건축물의 높이제한, 일조권 적용 등)을 위한 높이는 여러 가지로 나올 수 있다는 의미입니다.
예를 들어 OO씨는 고저차가 8m인 대지에 단일 건축물을 건축하려 합니다. 건축물의 높이 산정은 3m마다 해야 하므로, OO씨의 건축물은 A, B, C 세 부분이 다른 높이로 산정됩니다.

3m이상 고저차가 있는 건축물의 높이 설정 개념 ⓒ이재인

3m이상 고저차가 있는 대지의 건축물 높이산정 사례 : 계획안 ⓒ이재인
높은 쪽에서부터 3m씩 구분하든, 낮은 쪽에서부터 3m씩 구분하든 방향은 무관합니다. 편의상 낮은 쪽에 서부터 구분하여 계산해 보면 다음과 같습니다.
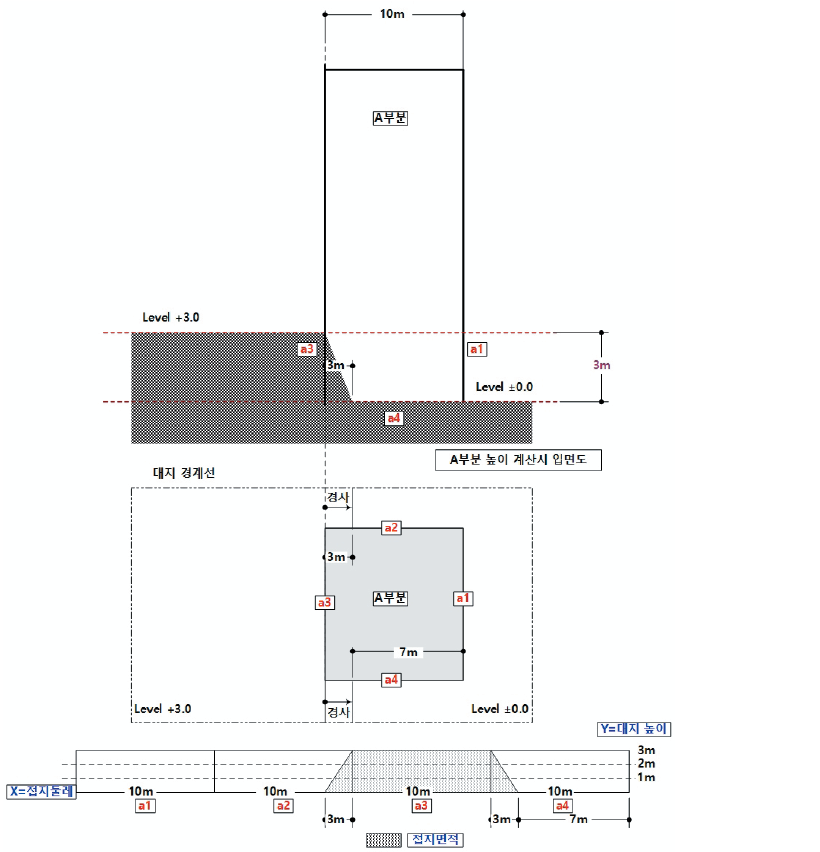
A부분의 평균지표면(접지면적/접지둘레)


A부분의 평균지표면 산정 ⓒ이재인
B부분의 평균지표면(접지면적/접지둘레)


B부분의 평균지표면 산정 ⓒ이재인
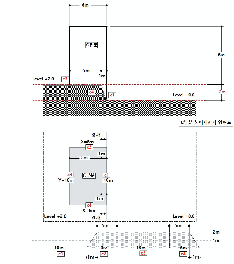
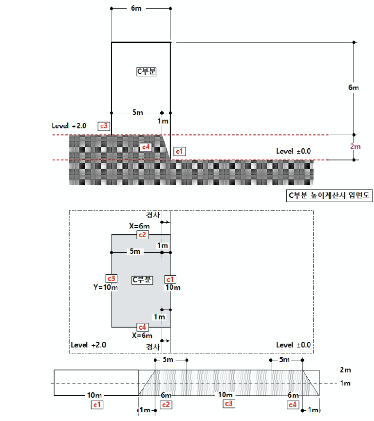
C부분의 평균지표면(접지면적/접지둘레)


C부분의 평균지표면 산정 ⓒ이재인

3m이상 고저차가 있는 대지의 건축물 각 부분 높이 산정 결과 ⓒ이재인
대지에 3m 이상 고저차가 있는 경우 건축물 각 부분이 다른 높이를 지닌다는 것은, 수치 그 자체로 의미를 가진다기보다는 「건축법」 관련 규정 적용을 위한 목적으로 산정하는 것입니다. 예를 들어 OO씨가 건축하려는 대지가 가로구역별 최고높이 10m로 지정·공고된 구역이라면 A부분은 산정한 수치(13.025m)보다 3.025m만큼 낮게 건축하여야 한다는 의미입니다.

건축물 높이제한(가로구역별 최고 높이 10m로 지정 · 공고된 구역의 겨우) 적용시 건축 가능 높이 ⓒ이재인
02. 고저차가 있는 대지 지하층의 지표면
‘지하층’의 정의에 대한 규정은 1962년 「건축법」 제정 당시부터 1984년까지는 반자높이를 기준으로 하여 규정하였습니다. 그러나 다가구주택이나 다세대주택 등 소위 ‘반지하 주거공간’의 채광을 높이기 위하여 반자높이를 조정하는 불법건축물이 성행하자 법을 개정하여 현재는 ‘층고’를 기준으로 ‘지하층’을 정의하고 있습니다.

지하층 정의 규정의 변천 ⓒ이재인
지하층’이란 건축물의 바닥이 지표면 아래에 있는 층으로서 바닥에서 지표면까지 평균높이가 해당 층 높이의 1/2이상인 것을 말한다(「건축법」 제2조 제1항 제5호). 경사지 등 고저차가 있는 대지에 건축물을 건축할 경우 건축물의 높이는 3m마다 가중평균하여 지표면을 각각 설정하는 것과 달리 지하층의 경우는 1회만 산정하면 된다.
주위 건축물 중에는 앞쪽에서 보면 지상 1층처럼 보이는데, 뒤로 돌아가 뒤쪽에서 보면 땅속에 묻혀 있는 것처럼 보이는 건축물이 있습니다. 그러니까 일부면은 땅속에 있고 일부면은 지상에 노출되어 있는 건축물이라는 것입니다.
이런 경우 지하층으로 봐야 할까 아니면 지상층으로 봐야 할까? 만약 지하층이 아니라면 건축물의 높이에 포함될 뿐 아니라 바닥면적(연면적)에 포함됩니다는 의미로 연결됩니다.
예를 들어 층고가 4m인 층이 경사지에 3면이 묻혀 있는 경우 이 층이 지하층인지 여부를 살펴보기로 합시다.

경사지 지하층 판단을 위한 가중지표면 산정 사례 : 3면이 층고 전체가 묻혀있는 경우 ⓒ이재인
대지의 가중수평면은 접지면적/접지둘레이므로 2m 높이에 가상의 지표면이 설정되었습니다. 건축물의 지하층 층고를 4m로 계획하였으니 층고의 1/2이 땅속에 묻혀있게 되므로 이 층은 지하층이다. 따라서 이 층은 용적률 규정 적용 시 용적률 산정을 위한 연면적 산정에서 제외됩니다.
다른 예를 살펴보면, 역시 지하층의 층고는 4m로 계획하였고, 3면이 흙에 1.5m 묻혀있습니다.

경사지 지하층 판단을 위한 가중지표면 산정 사례 : 3면이 층고 일부가 묻혀있는 경우 ⓒ이재인
경우는 대지의 가중수평면은 접지면적/접지둘레이므로 1m 높이에 가상의 지표면이 설정되었습니다. A층 층고 4m 중 지표 아래에 1/2이상 묻혀있지 않으므로 A층은 지하층이 아니며, 위의 사례와 달리 이 건축물은 지상2층 건축물이 됩니다.
03. 반자높이
반자높이는 방의 바닥면으로부터 반자까지의 높이로 한다. 다만 한 방 내에서 반자높이가 다른 부분이 있는 경우는 그 각 부분의 반자면적에 따라 가중평균한 높이(방의 부피/방의 면적)로 한다(「건축법 시행령」 제119조 제1항 제7호).

반자높이의 개념 ⓒ이재인
「건축법」 상 반자높이 기준 규정은 ‘거실의 반자높이’ 규정 적용을 위한 것입니다. 거실의 반자는 높이 2.1m 이상으로 하여야 합니다(「건축물의 피난·방화구조 등의 기준에 관한 규칙」 제16조 제1항). 다시 말해 반자높이가 2.1m 미만인 공간은 「건축법」 상 거실로 인정 받을 수가 없습니다.
흔히 ‘거실’이라고 하면 주거 건축물에서 가족들이 함께 사용하는 주거공용공간을 말합니다. 그러나 「건축법」에서 ‘거실’이란 건축물 안에서 거주, 집무, 작업, 집회, 오락 등에 사용되는 방을 말합니다(「건축법」 제2 조 제1한 제6호). 예를 들어 주택의 침실, 회의실, 공연장, 사무실 등이 모두 「건축법」 상의 ‘거실’인 반면, 창고나 화장실은 ‘거실’이 아닙니다.
대개의 경우 일반 사회적으로 사용하는 용어 개념보다 「건축법」에서 사용되는 개념이 축소되어 사용되는 것이 보통인데, ‘거실’ 개념에 있어서는 일반 개념보다 「건축법」에서 사용되는 개념이 보다 폭넓습니다.
「건축법」에서 건축물의 실내공간을 크게 ‘거실’과 ‘거실이 아닌 공간’으로 구분하는 개념은 사람들의 거주성이 있는 공간(거실)과 그렇지 않은 공간으로 구분하려는 목적입니다. 이는 도시에서 건축물의 밀도 관리 및 화재 등으로 인한 사람들의 대피성 안전 등을 관리하려는 목적이 있습니다.
04. 층고 : 「건축법」에서 누락하고 있는 높이 1.8과 2.1사이
‘층고(層高)’는 방의 바닥구조체 윗면으로부터 위층 바닥구조체의 윗면까지의 높이로 한다. 다만, 한 방에서 층의 높이가 다른 부분이 있는 경우에는 그 각 부분 높이에 따른 면적에 따라 가중평균한 높이(방의 부피/방의 면적)로 한다(「건축법 시행령」 제119조 제1항 제8호).
‘층고’의 규정은 ‘지하층’ 규정에 관여할 뿐만 아니라 ‘다락’ 규정에도 관여합니다.

층고의 개념 ⓒ이재인
‘다락’은 바닥면적에 포함하지 않아도 됩니다(「건축법 시행령」 제119조 제1항 제3호 라목). 이규정의 의미는 건축물 각 층 바닥면적의 합계인 연면적에 포함되지 않는다는 의미로 연결되고, 궁극적으로 의미하는 바는 용적률 산정에서 제외가 됩니다는 것으로 귀결됩니다.
예를 들어 A 건축물에는 다락이 있고 B 건축물에는 다락이 없습니다. 실제적으로 사용하는 건축물의 면적은 당연히 다락이 있는 A가 클 것입니다. 그러나 「건축법」 상의 연면적은 동일하다는 의미이므로 사실상 다락만큼 더 큰 건축물을 소유할 수 있다는 것입니다.
‘다락’은 지붕 아래 등 건축물 상부에 물건을 보관하는 창고의 기능으로 사용하는 공간을 의미합니다. 따라서 「건축법」에서는 ‘다락’을 ‘거실이 아닌 공간’으로 보아 바닥면적에서 제외하고 있는 것입니다. 「건축법」에서 ‘거실’과 ‘거실이 아닌 공간’의 구분은 공간의 쓰임새 외에 반자높이 2.1m를 기준으로 하고 있습니다.
바닥면적을 제외받기 위한 ‘다락’으로 인정받기 위해서는 ‘다락’의 기능에 부합하는 공간이어야 하지만 불법적으로 공간을 사용할 경우 이를 통제할 방법이 없습니다. 따라서 「건축법」에서는 다락의 층고를 규정하고 있습니다.
바닥면적에서 제외되는 ‘다락’으로 인정받기 위한 층고는 지붕의 형태에 따라 다르게 규정하고 있는데, 평지붕일 경우 층고가 1.5m 이하이고 경사지붕일 경우는 층고가 1.8m 이하여야 합니다(「건축법 시행령」 제119조 제1항 제3호 라목).

‘다락 층고’ 의 개념 ⓒ이재인
<글, 이미지 출처 : '그림으로 이해하는 건축법' >
본 내용은 2016년 기준으로 작성된 ‘그림으로 이해하는 건축법’의 내용을 수록한 것으로 법령 개정에 따라 일부 수정했음에도 일부 규정과 상이한 부분이 있을 수 있습니다. 각 법령 및 지침의 정확한 내용은 국가법령센터에서 다시 확인하시기 바랍니다. (http://www.law.go.kr) 또한 현황 법령에서 규정되어 있지 않은 부분에 있어서 유추해석 된 부분 등이 함께 수록되어 있음을 알려 드립니다.
https://www.midascad.com/cad_archive/buildingact-2
가중 평균 알아보기
「건축법」에서 높이와 관련된 규정의 기준은 실·내외를 막론하고 평균높이를 의미합니다. 예를 들어 건축물이 평평한 대지에 건축되었다면 별 문제가 없겠으나, 고저차(高低差)가 있는 경사
www.midascad.com